.jpg)
50 Sundance Drive, Mt Zion, IL
$325,000
Active
3 Beds
3½ Baths
2,469 SqFt
0.24 Acres
2 Car Garage
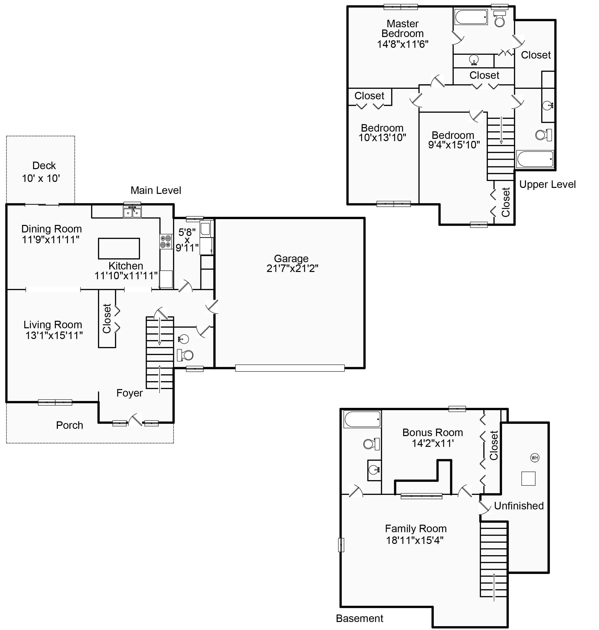
About 50 Sundance Drive
MOUNT ZION SCHOOLS – Sundance Fields Subdivision! This beautiful two-story home blends comfort, style, and thoughtful upgrades that provide true peace of mind. With a new roof (2024), new flooring throughout (2025) other than the kitchen and dining area which retain the charm of classic hardwood floors, and a new garage door (2022), this home has been meticulously maintained and improved for modern living. Essential systems have also been updated with a new furnace and AC (2020), and a new dishwasher and sliding glass door (2023) leading to the inviting deck and above-ground swimming pool (2020)—still open and ready for you to enjoy. The pool features a copper ionizer for low-maintenance, crystal-clear water so you can spend less time cleaning and more time relaxing. Step inside to the main level that offers an inviting living area perfect for family gatherings, a kitchen that opens easily to the dining space, and convenient main-floor laundry. Upstairs, you’ll find three spacious bedrooms, including a comfortable primary suite with a private bath with a walk-in closet! The lower level is a true retreat, featuring a cozy entertainment area complete with a pool table, projector, sound bar and large screen—ALL INCLUDED—making it the ultimate hangout for movie nights or friendly competition. There’s even the potential for a fourth bedroom or guest space, adding flexibility to suit your lifestyle. Outside, the large backyard is designed for both relaxation and fun, with a gorgeous deck (2020) overlooking the pool, perfect for hosting summer barbecues or simply soaking up the sun. The home’s prime location within the desirable Mount Zion School District offers convenience and connection, just minutes from schools, highways, shopping, and local parks. With all the big-ticket items already taken care of, this home is ready for you to move right in and start making lasting memories in one of Mount Zion’s most sought-after neighborhoods.
Facts & Features
MLS® # | 6255637 |
---|---|
Price | $325,000 |
Cost Per Square Foot | $132 |
Bedrooms | 3 |
Bathrooms | 4.00 |
Full Baths | 3 |
Half Baths | 1 |
Total Finished Square Feet | 2,469 |
Total Finished Above Grade | 1,752 |
Main | 876 |
Upper 1 | 876 |
Basement Total | 876 |
Basement Finished | 717 |
Basement Unfinished | 159 |
Acres | 0.24 |
Year Built | 2000 |
Type | Single Family |
Sub-Type | Single Family Residence |
Style | Traditional |
Status | Active |
Taxes | $8,470 |
Tax Year | 2024 |
Community Information
Address | 50 Sundance Drive |
---|---|
Subdivision | Sundance Fields 2nd |
City | Mt Zion |
County | Macon |
State | IL |
Zip Code | 62549 |
Amenities
Parking | Attached, Garage |
---|---|
# of Garage Spaces | 2 |
Is Waterfront | No |
Has Pool | Yes |
Interior
Appliances | Dishwasher, Disposal, Gas Water Heater, Microwave, Range, Refrigerator |
---|---|
Heating | Forced Air |
Cooling | Central Air |
Has Basement | Yes |
Basement | Finished, Unfinished, Full, Sump Pump |
Fireplace | No |
# of Stories | 2 |
Stories | Two |
Exterior
Exterior Features | Deck, Fence, Shed, Pool |
---|---|
Roof | Shingle |
Construction | Vinyl Siding |
Foundation | Basement |
School Information
District | Mt Zion Dist 3 |
---|
Additional Information
Date Listed | October 16th, 2025 |
---|---|
Days on Market | 4 |
Zoning | R-1 |
Listing Details
Agent | Cassandra Anderson |
---|---|
Office | Brinkoetter REALTORS® |