100 Beaman Drive, Illiopolis, IL
$224,900
Active - Under Contract
4 Beds
2½ Baths
2,440 SqFt
0.58 Acres
2 Car Garage
About 100 Beaman Drive
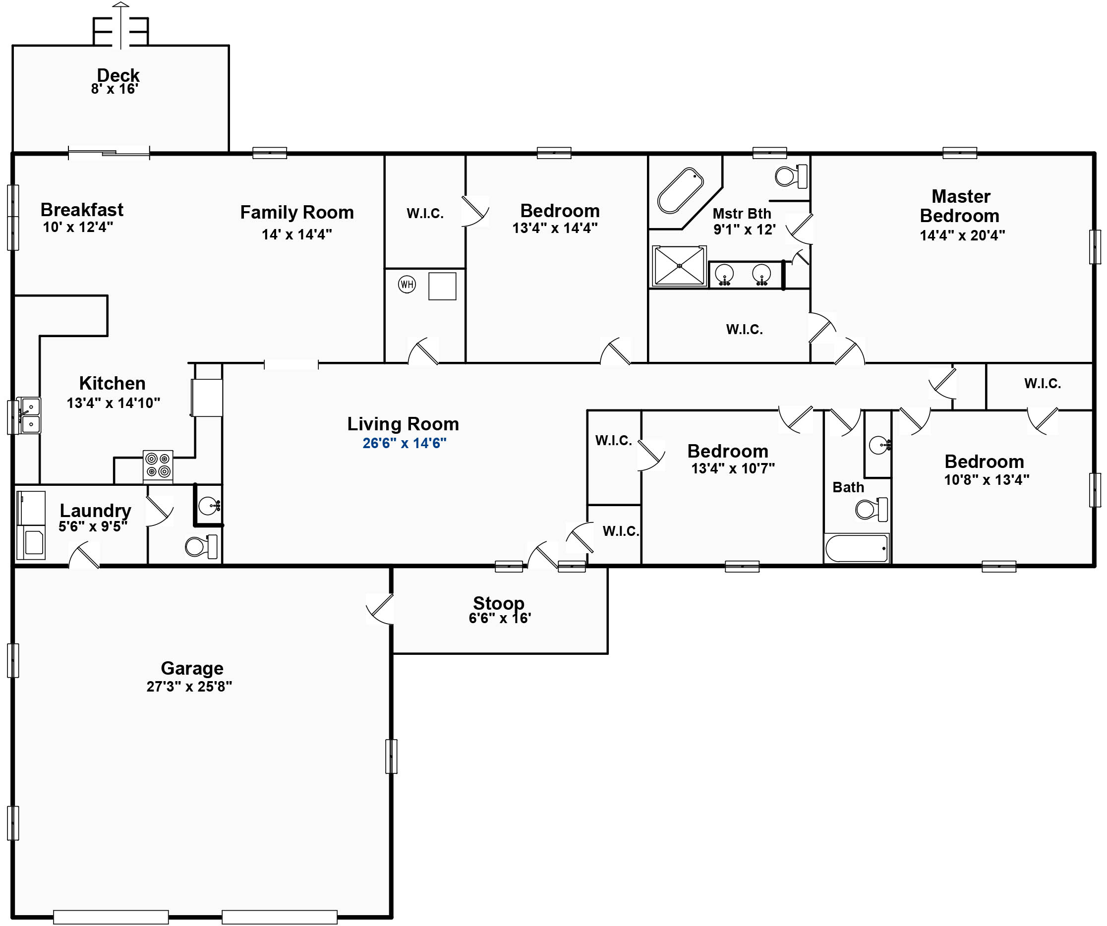
Welcome home to this spacious ranch on a .58-acre corner lot, offering the perfect blend of small-town comfort and everyday convenience, ideally located between major cities. With 4 bedrooms and 2.5 baths, this home provides room to spread out, relax, and enjoy both indoor and outdoor living. Generously sized bedrooms, each with large closets, offering both comfort and practical storage for everyday living. The primary suite serves as a true retreat, featuring an expansive layout, a spacious walk-in closet, and a private bath with double sinks, a relaxing jetted tub, and a separate shower—perfect for unwinding at the end of the day. Just off the oversized garage, the conveniently located laundry room with an attached half bath doubles as an ideal mudroom space, creating a functional drop zone to keep daily life organized and effortless. For those who need extra space, the expansive two-car garage offers plenty of room for storage, hobbies, or a workshop area. Outside, you will love the fully fenced yard, beautiful newer stamped concrete patio, and nearby fire pit, creating the perfect setting for entertaining or simply unwinding at the end of the day. There are two sheds providing even more storage options! Thoughtfully maintained and full of desirable features, this property offers the space you need with the setting you have been looking for! Call your Realtor for private showing!
Facts & Features
| MLS® # | 6257623 |
|---|---|
| Price | $224,900 |
| Cost Per Square Foot | $92 |
| Bedrooms | 4 |
| Bathrooms | 3.00 |
| Full Baths | 2 |
| Half Baths | 1 |
| Total Finished Square Feet | 2,440 |
| Total Finished Above Grade | 2,440 |
| Main | 2,440 |
| Acres | 0.58 |
| Year Built | 1960 |
| Type | Single Family |
| Sub-Type | Single Family Residence |
| Style | Ranch |
| Status | Active - Under Contract |
| Taxes | $4,254 |
| Tax Year | 2024 |
Community Information
| Address | 100 Beaman Drive |
|---|---|
| Subdivision | Kelsan Heights Add |
| City | Illiopolis |
| County | Sangamon |
| State | IL |
| Zip Code | 62539 |
Amenities
| Parking | Attached, Garage |
|---|---|
| # of Garage Spaces | 2 |
| Is Waterfront | No |
| Has Pool | No |
Interior
| Appliances | Dryer, Dishwasher, Gas Water Heater, Microwave, Refrigerator, Washer |
|---|---|
| Heating | Forced Air |
| Cooling | Central Air |
| Basement | Crawl Space |
| Fireplace | No |
| # of Stories | 1 |
| Stories | One |
Exterior
| Exterior Features | Shed, Fence |
|---|---|
| Roof | Shingle |
| Construction | Brick, Vinyl Siding |
| Foundation | Crawlspace |
School Information
| District | Sangamon Valley Dist 9 |
|---|
Additional Information
| Date Listed | April 3rd, 2026 |
|---|---|
| Days on Market | 9 |
| Zoning | RES |
Listing Details
| Agent | Cassandra Anderson |
|---|---|
| Office | Brinkoetter REALTORS® |