5527 N Route 48, Decatur, IL
$65,000
Active
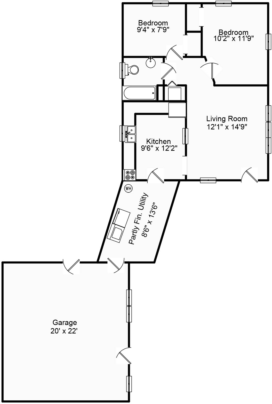
2 Beds
1 Bath
644 SqFt
0.97 Acres
About 5527 N Route 48
Country living with room to breathe on nearly an acre, located on Decatur’s far northeast side in the Argenta-Oreana School District. This 2-bedroom, 1-bath ranch offers the peace and privacy of a rural setting while still being conveniently close to town. The home features a new furnace installed in 2023 and a roof replaced within the last five years, providing buyers with confidence in the major mechanicals. The single-level layout offers comfortable living with potential to personalize or expand over time. The spacious lot provides endless possibilities for outdoor enjoyment, gardening, or additional outbuildings. If you’ve been looking for an affordable home with country feel, acreage, and solid updates already in place, this is an opportunity worth a look.
Facts & Features
| MLS® # | 6256368 |
|---|---|
| Price | $65,000 |
| Cost Per Square Foot | $101 |
| Bedrooms | 2 |
| Bathrooms | 1.00 |
| Full Baths | 1 |
| Total Finished Square Feet | 644 |
| Total Finished Above Grade | 644 |
| Main | 644 |
| Acres | 0.97 |
| Year Built | 1935 |
| Type | Single Family |
| Sub-Type | Single Family Residence |
| Style | Ranch |
| Status | Active |
| Taxes | $1,802 |
| Tax Year | 2024 |
Community Information
| Address | 5527 N Route 48 |
|---|---|
| Subdivision | Cundiff Add |
| City | Decatur |
| County | Macon |
| State | IL |
| Zip Code | 62526 |
Amenities
| Is Waterfront | No |
|---|---|
| Has Pool | No |
Interior
| Appliances | Electric Water Heater, Dishwasher, Dryer, Microwave, Oven, Washer |
|---|---|
| Heating | Forced Air |
| Cooling | Window Unit(s) |
| Basement | Crawl Space |
| Fireplace | No |
| # of Stories | 1 |
| Stories | One |
Exterior
| Lot Dimensions | irregular |
|---|---|
| Roof | Asphalt, Shingle |
| Construction | Vinyl Siding |
| Foundation | Crawlspace |
School Information
| District | Argenta Oreana Dist 1 |
|---|
Additional Information
| Date Listed | December 31st, 2025 |
|---|---|
| Days on Market | 66 |
| Zoning | AGR |
Listing Details
| Agent | Tony Piraino |
|---|---|
| Office | Brinkoetter REALTORS® |